EdNa
EdNa
Se trata de un edificio de viviendas de 44 apartamentos y 44 cochera.
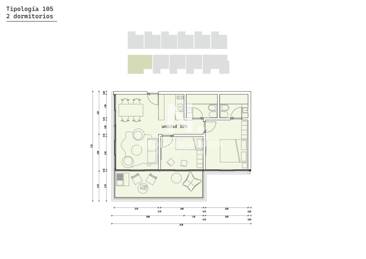
De ellos, 36 unidades tienen 1 dormitorio con 1 baño, cocina americana y terraza; y 8 nidades constan de 2 dormitorios, 2 baños, cocina americana y terraza.
El diseó, de aspecto contemporaneo, lineas limpias y minimalistas.
Todas la sunidades tienen grandes ventanales (suelo-techo), que aportan luminosidad y vistas, a los interiores comodos y funcionales.
A modo de zonas comunes, se ofrecen espacios de parrilleros y estacionamiento de cortesia, manteniendo asi un compromiso de bajos gastos comunes para los propietarios.
Esto es posible gracias a la ubicación privilegiada a solo 200 mts de distancia de las mejores playas de Punta del Este y rodeado de edificios emblematicos.
Electrodomésticos
Se incluyen en todas las unidades horno, anafe, campana, y extractores de aire en los baños.
Para calentar el agua se incluirán termos eléctricos
Características
- Cantidad de Pisos :5
- Asensores :0
- Mes de Entrega :0
- Distancia al Mar mts :200
- Parrillero :Si
- Tipo de Edificio :En Pozo
- Precio Garage :0
- Gasto Ocupación :0











































